間取りのアドバイスをお願いします!行き詰まっています…
7年前
注目アンサー
並び替え:古い順
コメント (8)
関連するディスカッション
新築の間取りやデザインについてアドバイスが欲しい
コメント (18)建築会社の提携の人の対応とセンスが合えばよいのですが、もしそこが融通きいてくれない相手で、どれだけ希望出しても妥協だらけになりそうなら困リますので、他の設計者が入る余地があるかを確かめたり、最悪他の建築会社も見といたほうが良い気もします。 毎日妥協点を見ながらその中で暮らすのは施主なので。 別ジャンルですが、自分のセンス通りの選択ができずに妥協した事は今でも思い出したくない事になっています。... もっと見る間取り診断・相談をお願いします
コメント (17)裕美さん こんにちは。はじめまして。 私も素人ですが、将来、お宅の南側に別の方のお家が建てられるのなら、madamballさんの「1←→2階チェンジ」のご意見に大賛成です!構造上の安全(=個室の壁がしっかりお2階を支える)面ももちろんですが、明るいLDKの実現は、とても良いと想います!!屋根断熱をしっかりすれば、LDKの天井を高くして広々した気持ちでの暮らしが可能になります。 https://nasahome.co.jp/works/w_kitchen/kitchen_20.html これは画像検索してみた一例ですが、 「明るいLDK」って本当に、家族みんなの元気の源になるし、過ごし易いですよ。買ってきた食材をお2階に上げる手間と、ゴミをお2階から出す手間以外は最高です!でもそういうことも慣れますし、もっと大きなメリット(恩恵)がたくさんあるから大丈夫です。私の友人で、「LDKがお2階」のお宅がありますが本当にハッピーにお暮らしで、羨ましい位です。 余談ですが、LDKのほか「お風呂がお2階」というお宅も中古物件の見学で2件観たことがありますが、1件は構造がしっかりしていたのでまったく傷んだ様子はなく「夜はお風呂の天窓からお月やお星を眺める」と言っていらっしゃいました。もう1件は大邸宅だったのにお風呂自体に2㎜の目立つクラックがたくさん出来ていて、土地も広くて非常に安価だったのにそこは誰も買わずに、結局は取り壊して分筆して売りなおしていました。強度にかかる費用を考えると「お風呂は1階」が良いかもしれません。... もっと見る間取りのセカンドオピニオンをお願いしたいです。
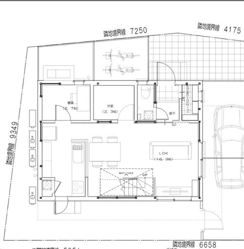
コメント (0)家族構成 妻と0歳の子ども(1人か2人子どもが増える予定) 周辺状況 東 2階建て一戸建て建設予定 西 2階建て一戸建て建設予定 南 4m道路を挟んで2階建て一戸建て 北 2階建て一戸建て 子育てのしやすい間取りを希望しています。この間取りで出てくる不都合、デメリットがあれば教えていただきたいです。この間取りの収納に加えて、脱衣所の洗濯機右横のハンガーパイプの下に収納棚を用意する予定です。 また窓の配置(日当たり、使いやすさ、外観)についても検討中です。よろしくお願いします。... もっと見る間取りセカンドオピニオンお願いします
コメント (2)20年後や40年後もイメージして、間取りを考えられたら良いと思います。 例えば . こどもが成人しても実家に留まるケースが増えていますが、その場合、必要なのは学習机ではなく、ソファや大型テレビです。 . 加齢でご自身の足腰が弱ってきた時、1階だけで暮らしが完結したほうが安全・快適です。 . 良い家が出来ますように。... もっと見る- 7年前
- 7年前




nyawlun