豊田空間デザイン室 一級建築士事務所
8件のレビュー

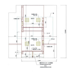
子供室を立体的に2室に仕切る(room in ROOM)

「大改造!!劇的ビフォーアフター・アフター」をご覧になった方からのご依頼でした。今回はマンションで3LDKという一般的な間取りで、限られたスペースでのリフォームです。概要はお子さんの成長に伴い、5.2帖という一人用ぐらいの部屋を二人のお子さんのために仕切る計画でした。ビフォーアフター・アフターでは姉妹お二人のスペースでしたので完全には仕切らず、緩やかに繋がった分け方でしたが、今回は男子・女子という条件。そのため床から天井まで完全に仕切ることになりました。そのため2段ベッドを中央に設けて分ける点では同じ方法でしたが、家具というより建築に近い仕様で設計。一人のスペースが2.6帖では狭く感じられるかもしれませんが、ベッドも部屋のように考えると4帖近いイメージになります。デスク・整理棚・ベッド下の収納・上下2段のクロゼット等必要な物を十分に設けることも出来ました。壁面には小さなニッチ(窪ませた飾り台)を数か所づつ設けて、各々にお子さんの好きなカラーでペイントした彩りが楽しさを醸し出しています。子供さん達にとって、自分の独立した「城」が出来たことで、これからの生活・勉強等に役立てたとしたら幸いです。
プロジェクトの竣工年/制作年: 2018
プロジェクトの費用: 100万円以上300万円未満
国: 日本